About
Graphics
Environmental Graphics
Illustration & Craft
About
Graphics
Environmental Graphics
Illustration & Craft
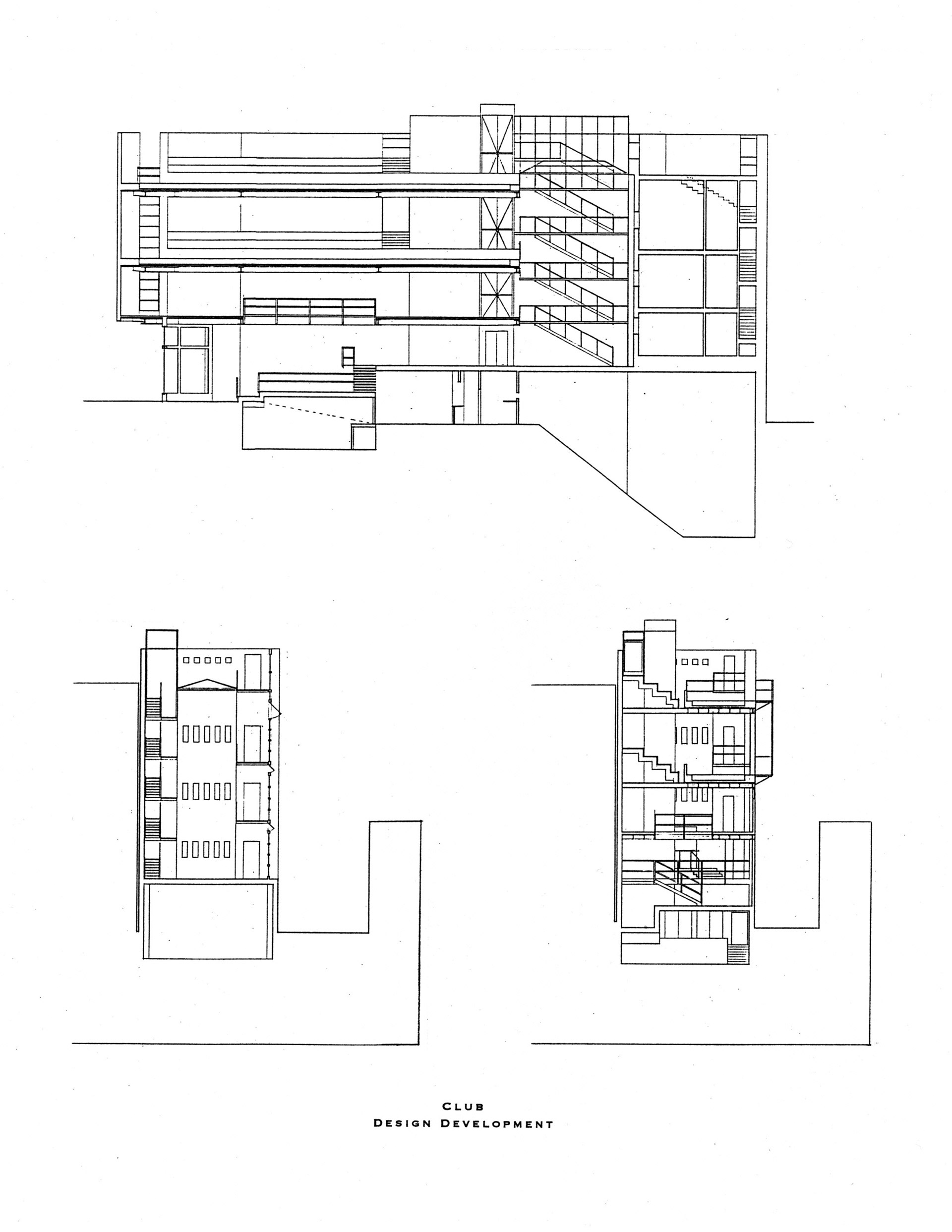
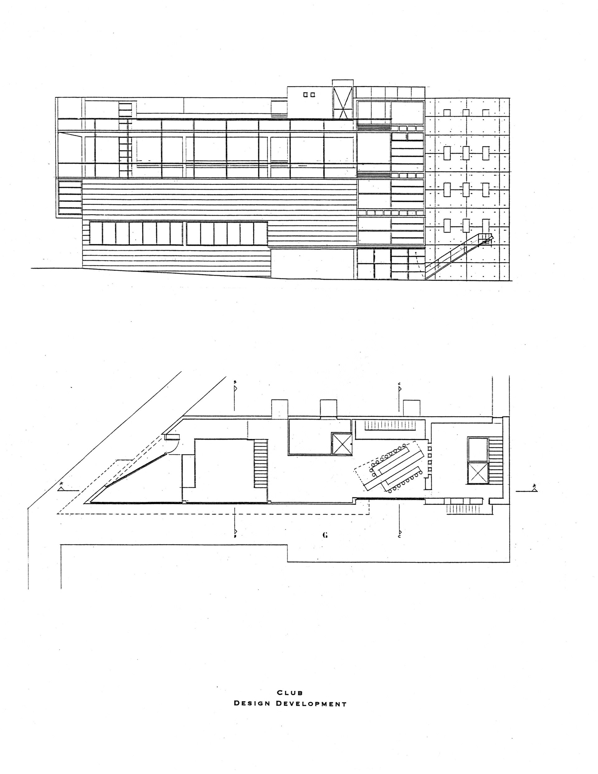
San Francisco Infill Project / Student Work
↑
Back to Top